Meyokumin, Edmonton

6096 Mill Woods Road S NW

$210,000
3 Bedrooms
3 Beds
1.5 Bathrooms
1.5 Baths

Listed by Selena Cheung of RE/MAX Excellence

Get the details

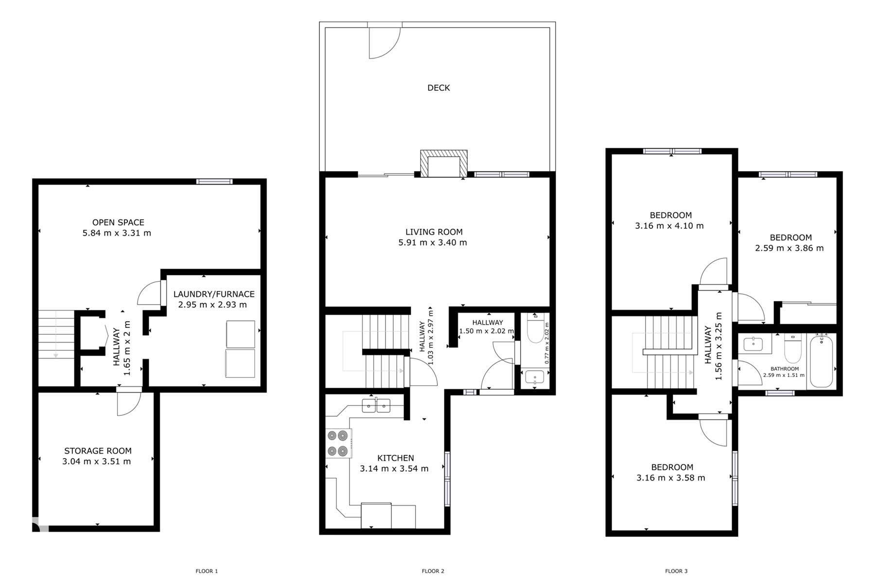
Opportunity knocks in Erindale Place. This affordable 3 bedroom townhouse is perfect for first time home buyers, renovators, or investors looking to add value. Located in the heart of Mill Woods near shopping, LRT, Grey Nuns Hospital, and with quick access to Anthony Henday, this location is hard to beat. The main floor offers a spacious layout with a large front kitchen, convenient half bath, an oversized living room at the back featuring a fireplace and patio doors leading to a huge deck that spans the entire fenced yard plus direct access to a quiet green space. Upstairs you get 3 good sized bedrooms and full bath. The partially finished basement provides a large flex space for a future rec room, gym, or home office along with laundry and storage which you always need. Two parking stalls right out front including a covered carport for protection and everyday convenience. A solid home with great bones and endless potential.

Courtesy of of RE/MAX Excellence.

What this place offers

  • Townhome built in 1978
  • 3 bedrooms
  • 1.5 bathrooms
  • 1,056 square feet
  • 2 storey
  • Partially finished basement
  • Condo fees of $395.39
  • E4480497 MLS® ID

Where you'll be

Townhome in Meyokumin, Edmonton

Searching for a home like this one?

Take the next step

Get help selling

Want amazing marketing for your home? See why so many families choose to sell their home with us.

Learn more about selling >

Get help buying

Have a question about buying a home? Get help from one of our award-winning agents today.

Learn more about buying >

stars 5.0 What people are saying

Janice Mills

stars

on Facebook

The Esposito Team have been our Realtors on multiple transactions, both buying and selling. We have loved our experiences with them and are amazed at their friendliness, real esta . . . more

Lyndsey Smith

stars

on Google

Mirella and the Esposito team are amazing! They were recommended to us by a handful of people, and after our first meeting with Mirella we could see why. As soon as our home hit t . . . more

Heather Neufeld

stars

on Google

We can't thank Joe enough for all of his assistance in selling our home!! From the initial phone call and meeting to discuss our home evaluation, we were impressed with his profes . . . more

Misty Harris

stars

on Google

I can’t say enough good things about Sheldon. He expertly guided me away from costly pitfalls; was highly responsive to my (many) messages; was accommodating in timelines fo . . . more

Hilary Forbes

stars

on Google

We were struggling to sell with another realtor. We had been on market for 80 days and were starting to think we would never sell. We switched Realtors to The Esposito Team based . . . more

Angela Paniccia

stars

on ESPO.ca

Mirella, Joe and Aldo demonstrate a meticulous work ethic and are committed to protecting my interests above all else. They are professional, extremely helpful and always maintain . . . more

Explore listings nearby