King Edward Park, Edmonton

9326 80 Avenue NW

$388,628
3 Bedrooms
3 Beds
2.5 Bathrooms
2.5 Baths

Listed by Samuel Ireland of REMAX River City

Get the details

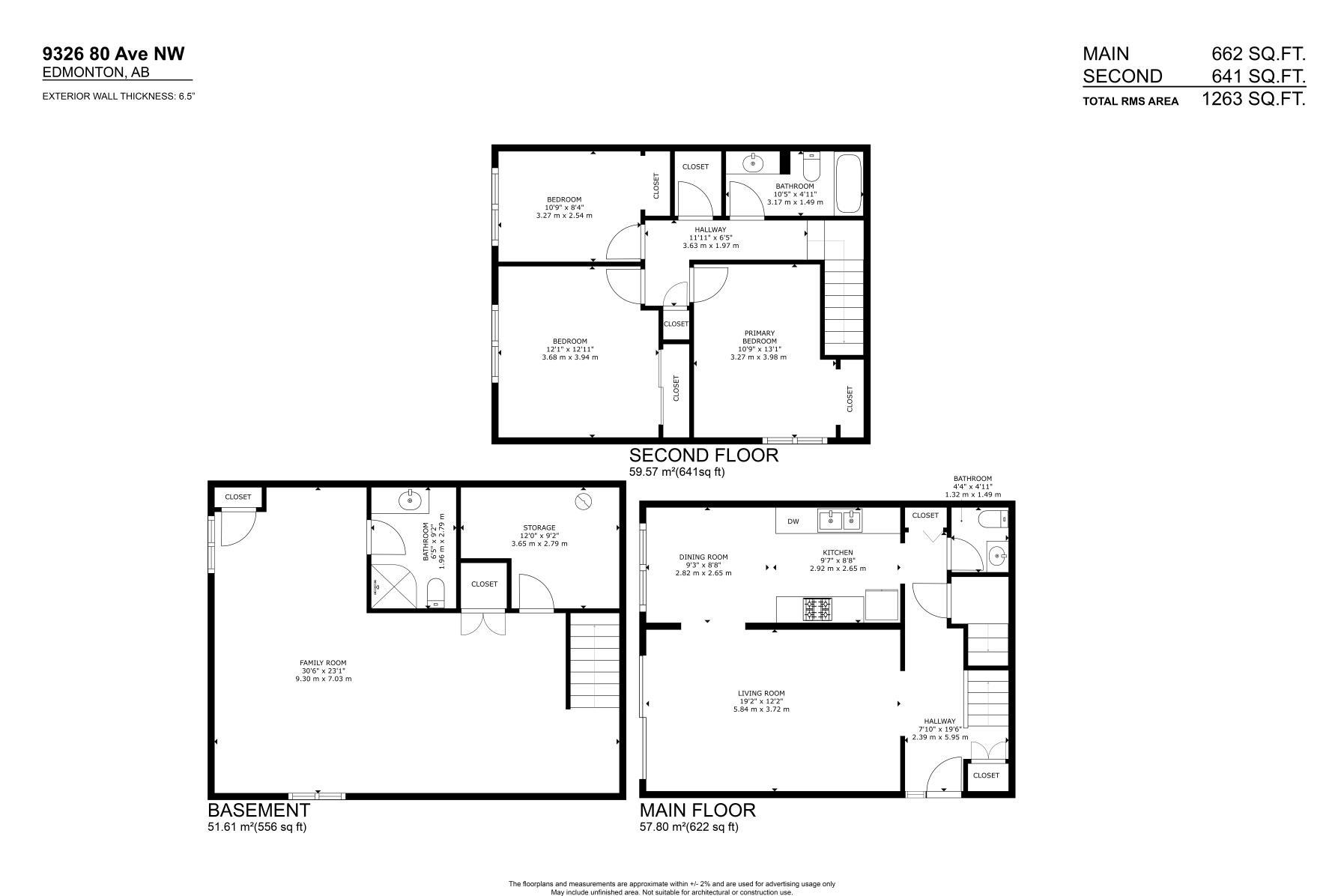
This beautifully renovated home offers an unbeatable location just steps from Mill Creek Ravine, directly across from Donnan Park, and only two blocks from the vibrant shops, dining, and nightlife of Whyte Avenue, making it an exceptional opportunity for investors or students attending the University of Alberta only minutes away. Fully updated from top to bottom and completely move-in ready, the home features a bright living area with patio doors leading to a private, shaded backyard deck, an efficient alley kitchen, a convenient main-floor powder room, three generous upstairs bedrooms with a modern four-piece bath, and a fully finished basement with a spacious rec room, three-piece bath, laundry, and ample storage. With no condo fees and private rear garden entry in a well-kept four-plex, and effortless access to outdoor recreation and urban amenities, this property delivers outstanding value and lifestyle appeal...an in-person viewing is the best way to appreciate everything it offers.

Courtesy of of REMAX River City.

What this place offers

  • Townhome built in 1978
  • 3 bedrooms
  • 2.5 bathrooms
  • 1,263 square feet
  • 2 storey
  • Finished basement
  • Condo fees of $0.00
  • E4480245 MLS® ID

Where you'll be

Townhome in King Edward Park, Edmonton

Searching for a home like this one?

Take the next step

Get help selling

Want amazing marketing for your home? See why so many families choose to sell their home with us.

Learn more about selling >

Get help buying

Have a question about buying a home? Get help from one of our award-winning agents today.

Learn more about buying >

stars 5.0 What people are saying

Janice Mills

stars

on Facebook

The Esposito Team have been our Realtors on multiple transactions, both buying and selling. We have loved our experiences with them and are amazed at their friendliness, real esta . . . more

Lyndsey Smith

stars

on Google

Mirella and the Esposito team are amazing! They were recommended to us by a handful of people, and after our first meeting with Mirella we could see why. As soon as our home hit t . . . more

Heather Neufeld

stars

on Google

We can't thank Joe enough for all of his assistance in selling our home!! From the initial phone call and meeting to discuss our home evaluation, we were impressed with his profes . . . more

Misty Harris

stars

on Google

I can’t say enough good things about Sheldon. He expertly guided me away from costly pitfalls; was highly responsive to my (many) messages; was accommodating in timelines fo . . . more

Hilary Forbes

stars

on Google

We were struggling to sell with another realtor. We had been on market for 80 days and were starting to think we would never sell. We switched Realtors to The Esposito Team based . . . more

Angela Paniccia

stars

on ESPO.ca

Mirella, Joe and Aldo demonstrate a meticulous work ethic and are committed to protecting my interests above all else. They are professional, extremely helpful and always maintain . . . more

Explore listings nearby