Secord, Edmonton

90 - 9535 217 Street NW

$349,900
3 Bedrooms
3 Beds
2.5 Bathrooms
2.5 Baths

Listed by Kelly Grant of MaxWell Polaris

Get the details

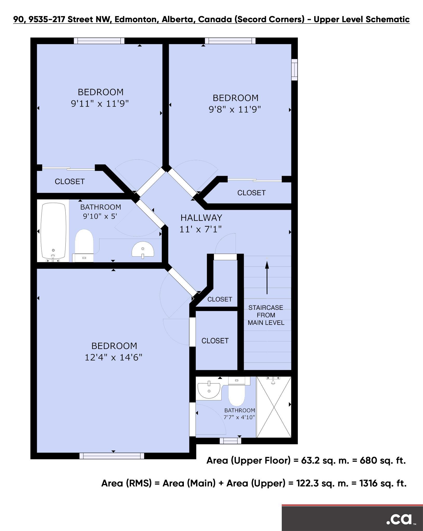
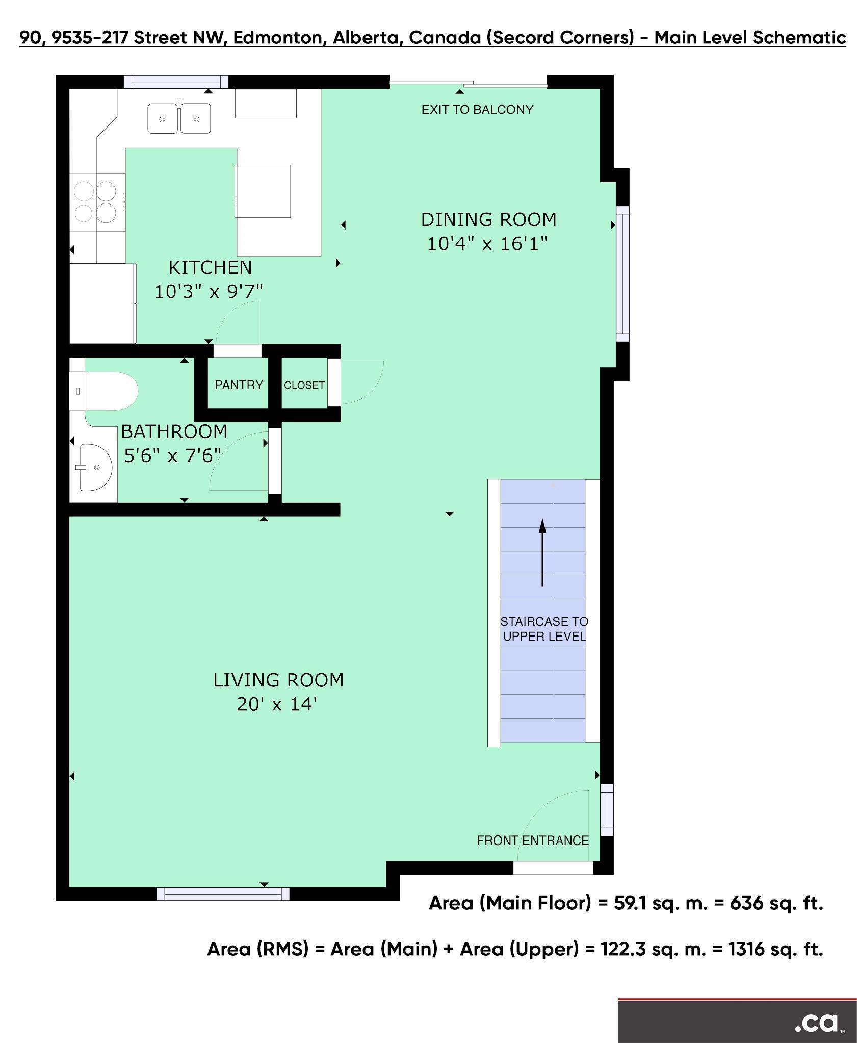
Nice 2-Storey Townhouse Condo End Unit in Secord Corners -- great for first-time home Buyers! Unit features: * 3 Bedrooms & 2.5 Baths * Feature Glass Stairway Divider Wall * Nicely Carpeted Staircases * Upgraded Cabinetry * Granite Countertops * Stainless Steel & Black Appliances * Balcony Access Off Kitchen / Dining Room (With Gas BBQ Outlet) * Sizeable Primary Bedroom with Full En Suite Bathroom and Walk-in Closet * Air Conditioning * Built-in Vacuum System * New Hot Water Tank * Attached and Oversized Double Attached Garage with Basement Access. Secord Corners Condominium is a quality 2013-built complex by Footprint Developments & professionally managed by CORE Management. Over $480K reserve fund (Feb. 2026) with current condo documents package available for review. 45-day possession. Located in West Edmonton (Community of Secord) with easy access to Winterburn Road, Stony Plain Road, Retail, Professional Services, Ranch Golf & Country Club, Whitemud Drive, & Anthony Henday Drive.

Courtesy of of MaxWell Polaris.

What this place offers

  • Townhome built in 2013
  • 3 bedrooms
  • 2.5 bathrooms
  • 1,316 square feet
  • 2 storey
  • Partially finished basement
  • Condo fees of $382.00
  • E4477523 MLS® ID

Where you'll be

Townhome in Secord, Edmonton

Searching for a home like this one?

Take the next step

Get help selling

Want amazing marketing for your home? See why so many families choose to sell their home with us.

Learn more about selling >

Get help buying

Have a question about buying a home? Get help from one of our award-winning agents today.

Learn more about buying >

stars 5.0 What people are saying

Janice Mills

stars

on Facebook

The Esposito Team have been our Realtors on multiple transactions, both buying and selling. We have loved our experiences with them and are amazed at their friendliness, real esta . . . more

Lyndsey Smith

stars

on Google

Mirella and the Esposito team are amazing! They were recommended to us by a handful of people, and after our first meeting with Mirella we could see why. As soon as our home hit t . . . more

Heather Neufeld

stars

on Google

We can't thank Joe enough for all of his assistance in selling our home!! From the initial phone call and meeting to discuss our home evaluation, we were impressed with his profes . . . more

Misty Harris

stars

on Google

I can’t say enough good things about Sheldon. He expertly guided me away from costly pitfalls; was highly responsive to my (many) messages; was accommodating in timelines fo . . . more

Hilary Forbes

stars

on Google

We were struggling to sell with another realtor. We had been on market for 80 days and were starting to think we would never sell. We switched Realtors to The Esposito Team based . . . more

Angela Paniccia

stars

on ESPO.ca

Mirella, Joe and Aldo demonstrate a meticulous work ethic and are committed to protecting my interests above all else. They are professional, extremely helpful and always maintain . . . more

Explore listings nearby