Meadows Of Rosenthal, Rural Parkland County

2 - 52329 Rge Road 13

$875,000
5 Bedrooms
5 Beds
3 Bathrooms
3 Baths

Listed by Patricia Halder & John Roznicki of Century 21 Masters

Get the details

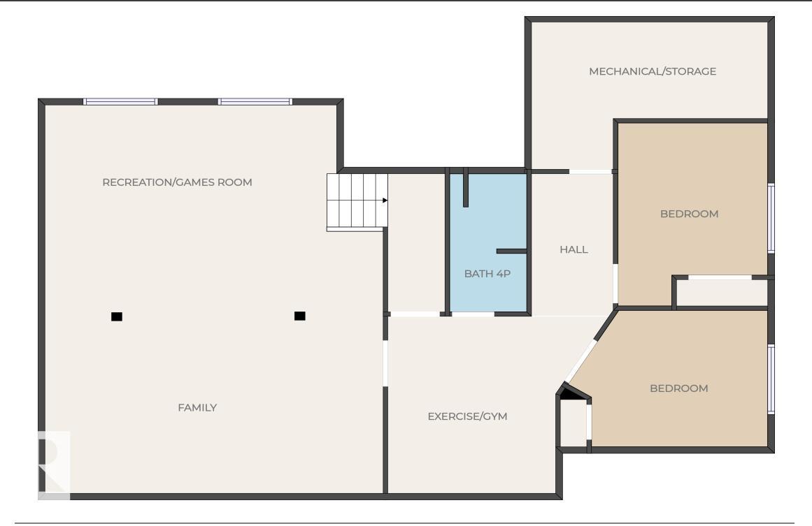
Experience acreage living in this immaculate FIVE bedrooms and THREE full bath bungalow set on 2.17 acres just minutes from Stony Plain. Thoughtfully designed, the home welcomes you with vaulted ceiling, an exposed beam, and a warm gas fireplace that anchors the open living space. The chef’s kitchen impresses with a grand island, premium finishes, and a seamless walk-through pantry. Retreat to the elegant primary suite featuring a spa-inspired 5-piece ensuite and spacious walk-in closet. The fully developed lower level offers an expansive family room - great for entertaining large groups, fitness area, two generous bedrooms, and a heated-floor 3 pc bath. Outdoors, enjoy peaceful mornings on the front veranda, evenings on the private back deck, and a fully fenced yard ideal for family living. A heated triple garage, large shed, and ample parking complete this exceptional property. Simply move in and indulge in elevated country living!

Courtesy of of Century 21 Masters.

What this place offers

  • House built in 2018
  • 5 bedrooms
  • 3 bathrooms
  • 1,834 square feet
  • Bungalow
  • Finished basement
  • E4477375 MLS® ID

Where you'll be

House in Meadows Of Rosenthal, Rural Parkland County

Searching for a home like this one?

Take the next step

Get help selling

Want amazing marketing for your home? See why so many families choose to sell their home with us.

Learn more about selling >

Get help buying

Have a question about buying a home? Get help from one of our award-winning agents today.

Learn more about buying >

stars 5.0 What people are saying

Janice Mills

stars

on Facebook

The Esposito Team have been our Realtors on multiple transactions, both buying and selling. We have loved our experiences with them and are amazed at their friendliness, real esta . . . more

Lyndsey Smith

stars

on Google

Mirella and the Esposito team are amazing! They were recommended to us by a handful of people, and after our first meeting with Mirella we could see why. As soon as our home hit t . . . more

Heather Neufeld

stars

on Google

We can't thank Joe enough for all of his assistance in selling our home!! From the initial phone call and meeting to discuss our home evaluation, we were impressed with his profes . . . more

Misty Harris

stars

on Google

I can’t say enough good things about Sheldon. He expertly guided me away from costly pitfalls; was highly responsive to my (many) messages; was accommodating in timelines fo . . . more

Hilary Forbes

stars

on Google

We were struggling to sell with another realtor. We had been on market for 80 days and were starting to think we would never sell. We switched Realtors to The Esposito Team based . . . more

Angela Paniccia

stars

on ESPO.ca

Mirella, Joe and Aldo demonstrate a meticulous work ethic and are committed to protecting my interests above all else. They are professional, extremely helpful and always maintain . . . more

Explore listings nearby

Search by community