Jasper Park, Edmonton

9007 153 Street NW

$677,400
6 Bedrooms
6 Beds
4 Bathrooms
4 Baths

Listed by Mandeep Kandola of Century 21 All Stars Realty Ltd

Get the details

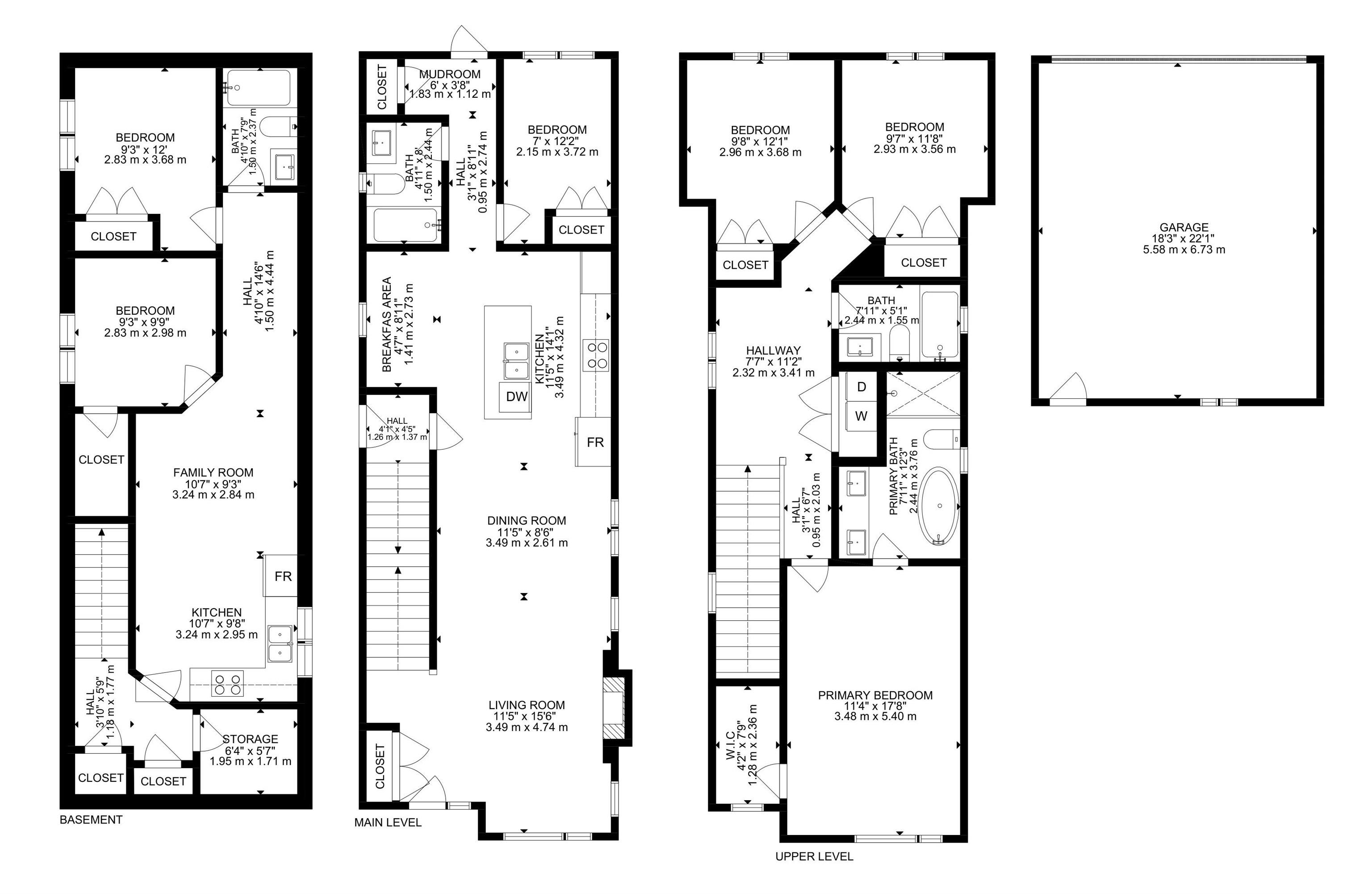
UPGRADED HOME IN THE COMMUNITY OF JASPER PARK! This Brand New home offers 2540 Sq Ft of living space with 6 bedrooms, 4 baths, 9ft ceilings, 8ft doors. Main floor offers vinyl plank flooring, bedroom, Full bath, family room, fireplace. Kitchen with modern high cabinetry, quartz countertops, island. Amply Large Mud room, Spacious dinning area with ample sunlight is perfect for get togethers. Walk up stairs to Grand master Suite with 5 piece ensuite/spacious walk in closet, 2 more bedrooms with fully modern common bath, Laundry and bonus area. Fully finished 2 bedroom legal basement suite with separate entrance, 2nd Kitchen, Full bath and Laundry. Your dream home sitting on HUGE lot is next to James Gibbons School, parks, amenities. Includes DETACHED Double Car Garage, TRIPLE PANE WINDOWS, ROUGH GRADE, GAS LINE IN KITCHEN & PATIO. this home offers exceptional value and style. Move-in ready - Don't miss out on this fantastic opportunity!

Courtesy of of Century 21 All Stars Realty Ltd.

What this place offers

  • House built in 2025
  • 6 bedrooms
  • 4 bathrooms
  • 1,787 square feet
  • 2 storey
  • Finished basement
  • E4469566 MLS® ID

Where you'll be

House in Jasper Park, Edmonton

Searching for a home like this one

Take the next step

Get help selling

Want amazing marketing for your home? See why so many families choose to sell their home with us.

Learn more about selling >

Get help buying

Have a question about buying a home? Get help from one of our award-winning agents today.

Learn more about buying >

stars 5.0 What people are saying

Janice Mills

stars

on Facebook

The Esposito Team have been our Realtors on multiple transactions, both buying and selling. We have loved our experiences with them and are amazed at their friendliness, real esta . . . more

Lyndsey Smith

stars

on Google

Mirella and the Esposito team are amazing! They were recommended to us by a handful of people, and after our first meeting with Mirella we could see why. As soon as our home hit t . . . more

Heather Neufeld

stars

on Google

We can't thank Joe enough for all of his assistance in selling our home!! From the initial phone call and meeting to discuss our home evaluation, we were impressed with his profes . . . more

Misty Harris

stars

on Google

I can’t say enough good things about Sheldon. He expertly guided me away from costly pitfalls; was highly responsive to my (many) messages; was accommodating in timelines fo . . . more

Hilary Forbes

stars

on Google

We were struggling to sell with another realtor. We had been on market for 80 days and were starting to think we would never sell. We switched Realtors to The Esposito T . . . more

Angela Paniccia

stars

on ESPO.ca

Mirella, Joe and Aldo demonstrate a meticulous work ethic and are committed to protecting my interests above all else. They are professional, extremely helpful and always maintain . . . more

Explore listings nearby