32 - 120 Magrath Road NW, Magrath Heights, Edmonton

32 - 120 Magrath Road NW

Magrath Heights, Edmonton

Listing courtesy of Maggie Wang of Initia Real Estate

$399,000

beds
3
baths
2.5
sqft
1270

About this Duplex

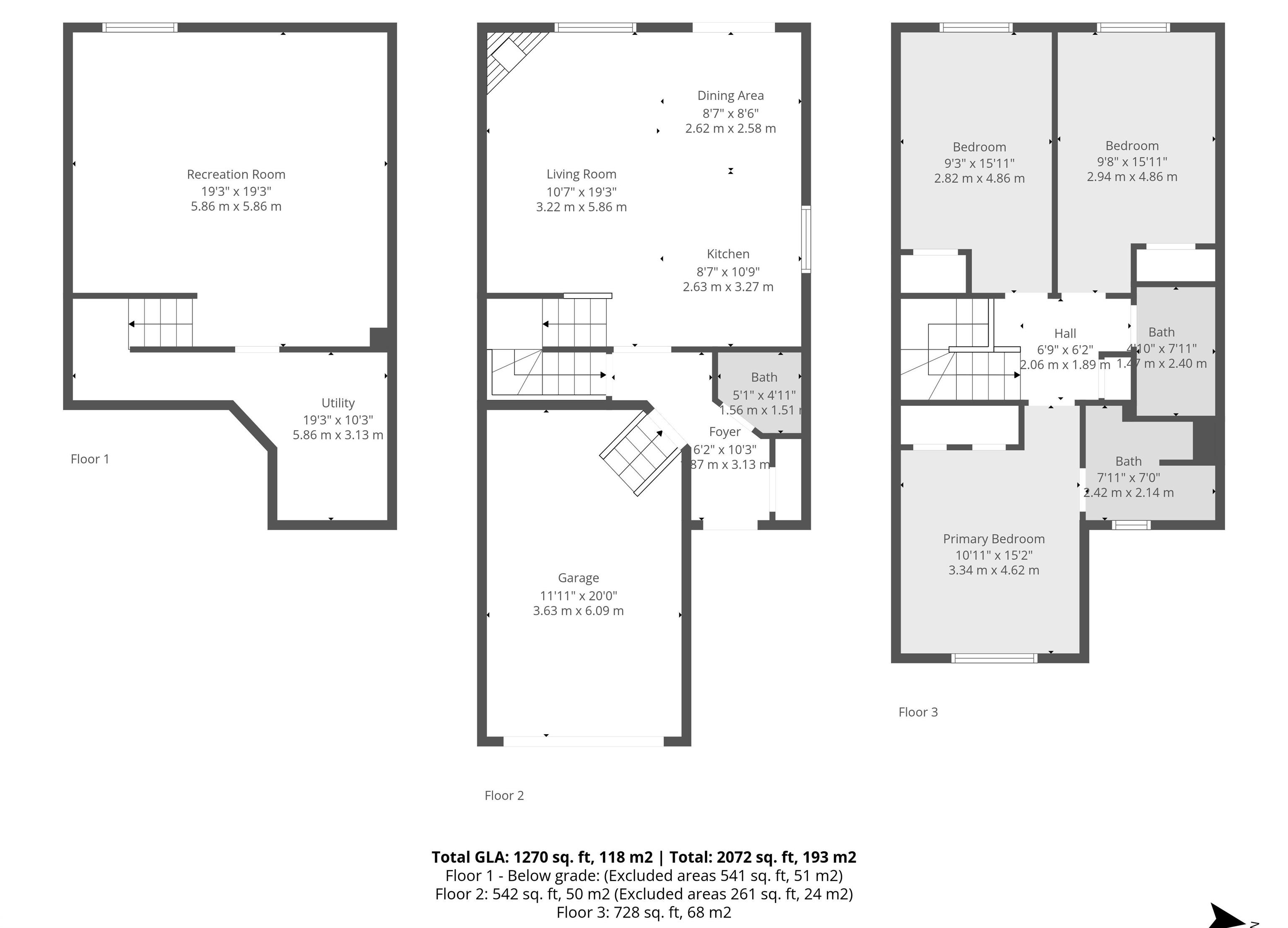
Welcome to Unit 32 in Magrath Heights, a beautifully upgraded 3-bedroom, 2.5-bath half-duplex with a fully finished basement. This bright and inviting home has been refreshed with new flooring (2025), paint(2025), lighting(2025), and quartz countertops (2025), plus professional cleaning throughout. The kitchen features stainless steel appliances, including a newer stove (2022) and microwave (2021), with ample counter and cupboard space. Upstairs, the primary suite offers a full ensuite, alongside two additional bedrooms and a second full bath. The finished basement provides flexible space for a home office, gym, or media room. Complete with a single attached garage, and a prime location close to Nellie Carlson K-9 School, recreation centre, shopping, parks, trails, and MacTaggart Sanctuary, with quick access to Whitemud and Anthony Henday.

Courtesy of of Initia Real Estate.

$399,000

beds
3
baths
2.5
sqft
1270

Property Features

  • MLS®: E4461533
  • Type: Duplex
  • Bedrooms: 3
  • Bathrooms: 2.5
  • Square Feet: 1,270 sqft
  • Condo Fees: $310.00
  • Basement: Full, Finished
  • Year Built: 2006
  • Style: 2 Storey

Looking to buy a home like this one?

Kick your search up a notch.
Get help buying

Get help selling

Want marketing like this for your home? See why so many families choose to sell their home with us.

Learn more about selling >

Get help buying

Have a question about buying a home? Get help from one of our award-winning agents today.

Learn more about buying >