223 Oeming Road NW, Bulyea Heights, Edmonton

223 Oeming Road NW

Bulyea Heights, Edmonton

Listing courtesy of Pat Boulton of Century 21 Leading

$350,000

beds
2
baths
2
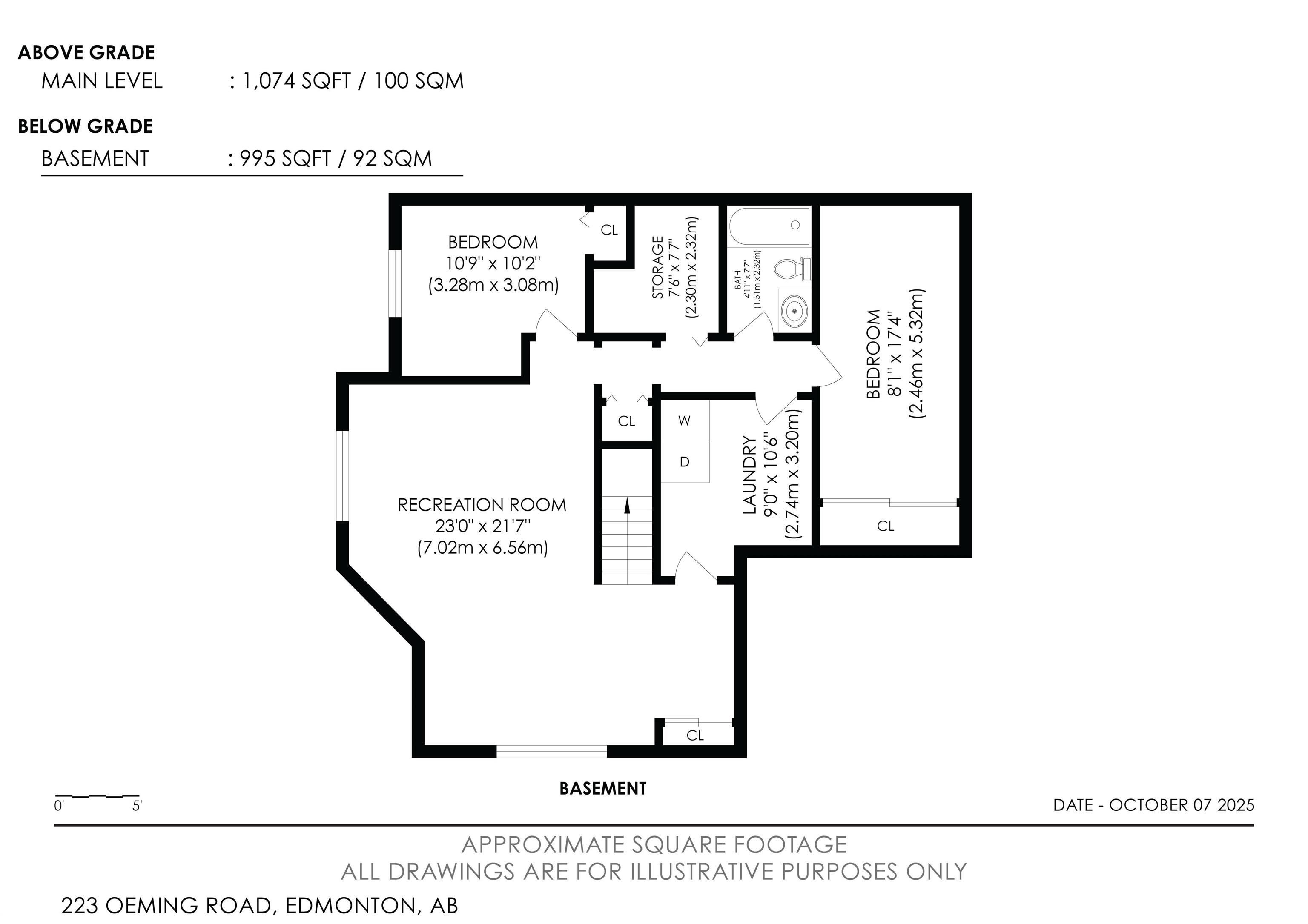
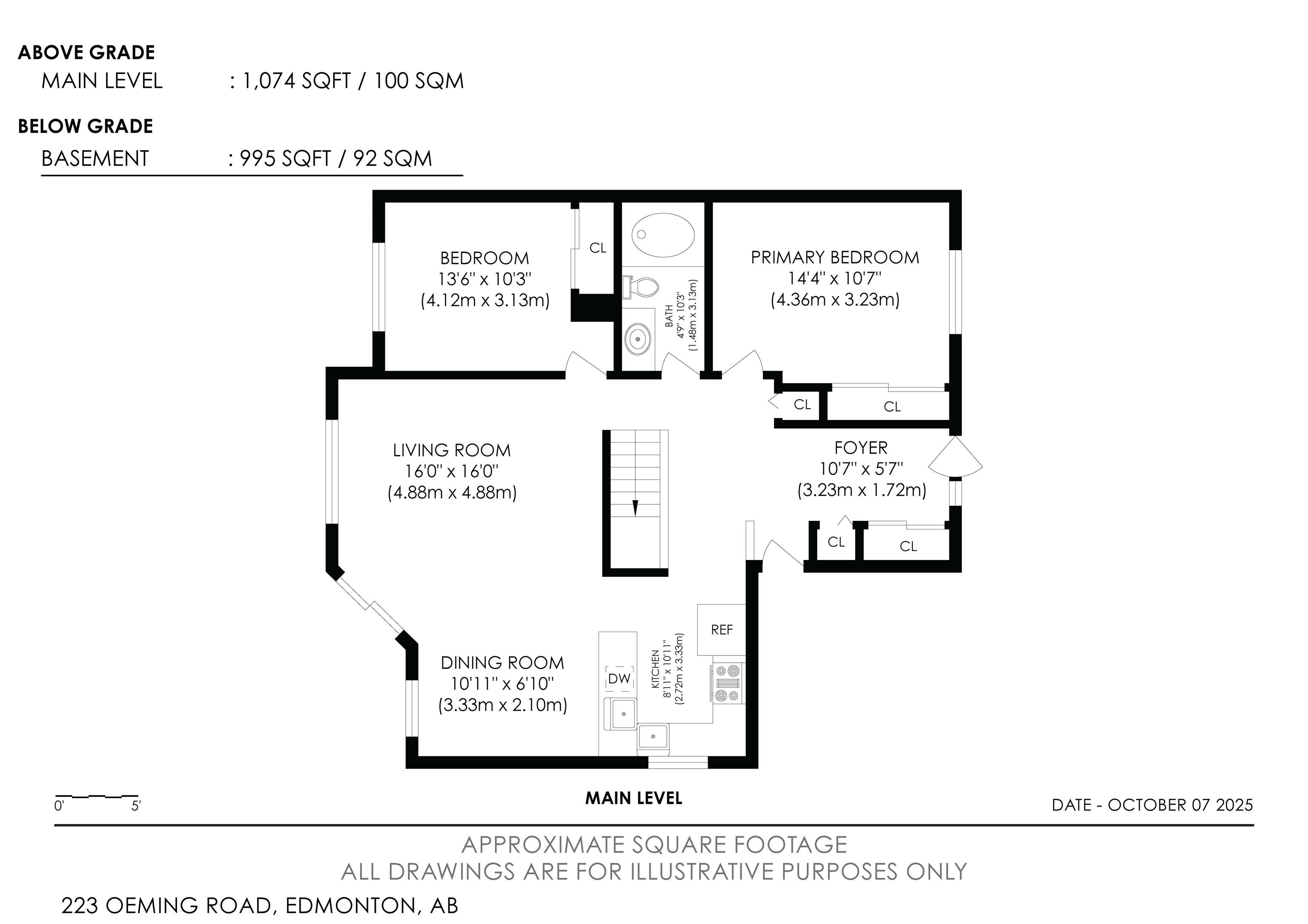
sqft
1066

About this Duplex

Your chance to upgrade to your specifications and to get into this desirable adult community of Horizon Village Whitemud. Located in Bulyea Heights, this complex is near shopping, transportation routes, eateries, the library and medical offices. The unit is located on a green space, near extensive ravine walking trails, and offers 2 bedrooms up, fully developed downstairs and a double garage.

Courtesy of of Century 21 Leading.

$350,000

beds
2
baths
2
sqft
1066

Property Features

  • MLS®: E4461375
  • Type: Duplex
  • Bedrooms: 2
  • Bathrooms: 2
  • Square Feet: 1,066 sqft
  • Condo Fees: $399.30
  • Basement: Full, Partially Finished
  • Year Built: 1986
  • Style: Bungalow

Looking to buy a home like this one?

Kick your search up a notch.
Get help buying

Get help selling

Want marketing like this for your home? See why so many families choose to sell their home with us.

Learn more about selling >

Get help buying

Have a question about buying a home? Get help from one of our award-winning agents today.

Learn more about buying >