2414 63 Avenue NE, Churchill Meadow, Rural Leduc County

2414 63 Avenue NE

Churchill Meadow, Rural Leduc County

Listing courtesy of Jasleen Brar of Exp Realty

$745,000

beds
4
baths
4
sqft
2556

About this House

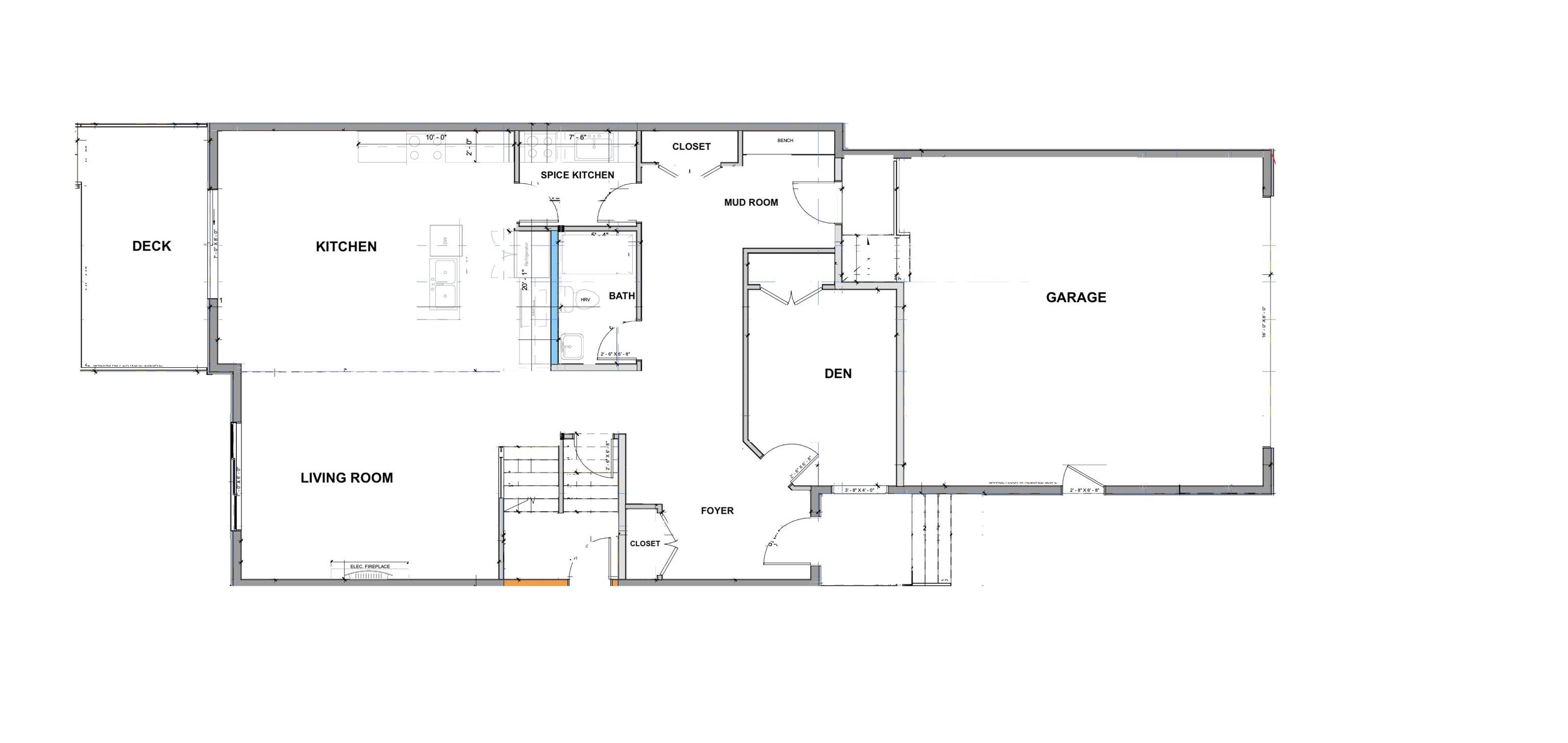
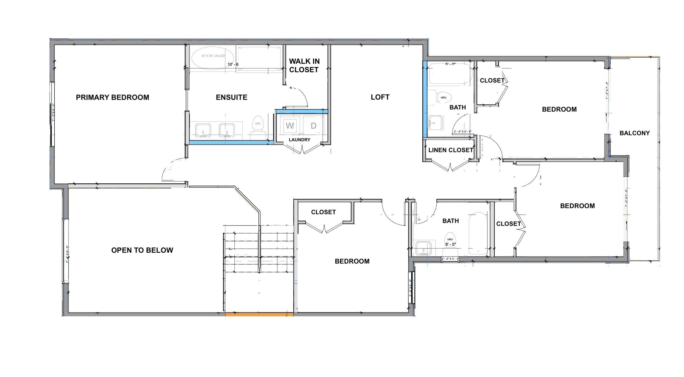
Be the very first to own this 2,256 sq ft brand-new, never lived in home. Still under construction, this stunning 2-storey offers soaring 9 ft ceilings on the main floor, an open-to-below design, and a bright open concept layout perfect for families. The chef’s kitchen features a large island, modern finishes, and a convenient spice kitchen, while the living room showcases a cozy fireplace. A main floor bedroom with a full bath provides flexibility for guests or family. Upstairs you will find four bedrooms including a luxurious primary suite with a 5-piece spa-inspired ensuite and walk-in closet, plus two bedrooms with access to their own private balconies, perfect for quiet mornings or evening reading. The unfinished basement with side entrance is ready for your ideas, whether a guest suite or recreation space, and outside you can enjoy a covered deck for year-round use. Ideally located just minutes from Edmonton International Airport, Premium Outlet Mall, schools and major highways.

Courtesy of of Exp Realty.

$745,000

beds
4
baths
4
sqft
2556

Property Features

  • MLS®: E4456303
  • Type: House
  • Bedrooms: 4
  • Bathrooms: 4
  • Square Feet: 2,556 sqft
  • Basement: Full, Unfinished
  • Year Built: 2025
  • Style: 2 Storey

Looking to buy a home like this one?

Kick your search up a notch.
Get help buying

Get help selling

Want marketing like this for your home? See why so many families choose to sell their home with us.

Learn more about selling >

Get help buying

Have a question about buying a home? Get help from one of our award-winning agents today.

Learn more about buying >