5 - 2022 Parkland Drive, Marrakesh Properties, Rural Parkland County

5 - 2022 Parkland Drive

Marrakesh Properties, Rural Parkland County

Listing courtesy of Carson Beier of Royal LePage Noralta Real Estate

$950,000

beds
6
baths
3.5
sqft
2260

About this House

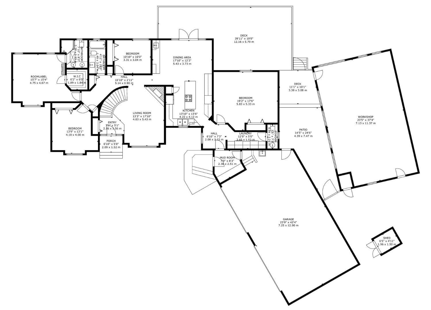
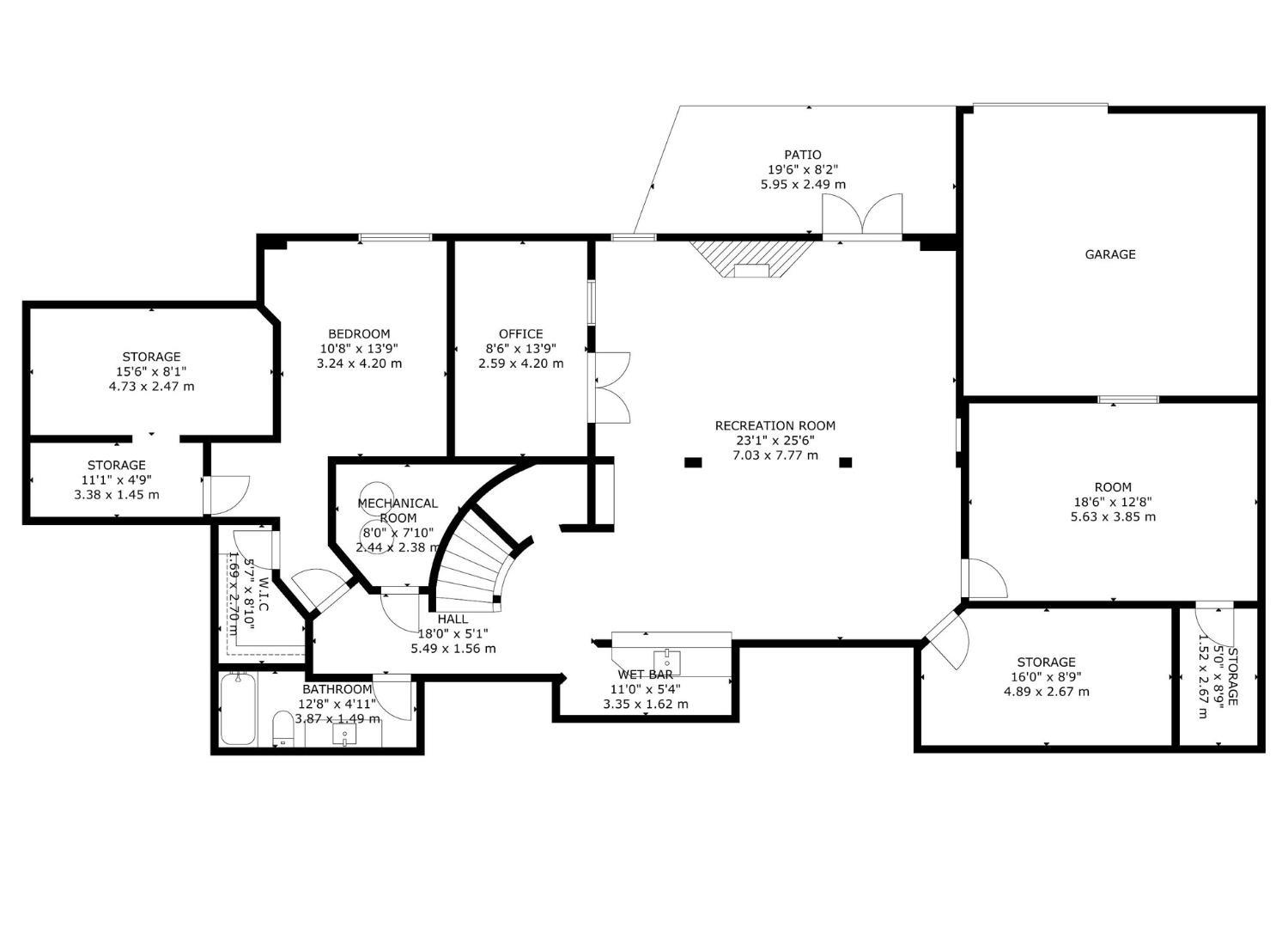
Custom WALKOUT Bungalow w/ Attached QUAD Garage (44Wx25L, heated, 220V, water/sink) on 1.43 acres in a quiet cul-de-sac on a PRIVATE POND in Marrakesh Properties subdivision, a short 10 min drive west of Stony Plain. This beautiful 2,256 sq ft (plus full basement) home features central AC, hardwood & tile flooring, vaulted ceilings and the perfect spaces for you home business. On the main: living room w/ gas fireplace, dining room w/ built-in buffet (sink & beverage fridge), gourmet kitchen w/ eat-up centre island, main floor laundry, 2.5 bathrooms & 4 bedrooms including the owner’s suite w/ 5-pc ensuite & walk-in closet. Walkout basement: 2 additional bedrooms, office, 4-pc bath, storage rooms and a massive family/rec room w/ 2nd gas fireplace, wet bar & sound system. Outside: WATERFRONT VIEWS from the patio & composite deck; 2 sheds, paved driveway and a 48’x24’ WORKSHOP w/ heat & central AC. Easy access to Yellowhead & 16A. Perfect location to run a business from your PRIVATE WATERFRONT HOME near town.

Courtesy of of Royal LePage Noralta Real Estate.

$950,000

beds
6
baths
3.5
sqft
2260

Property Features

  • MLS®: E4432699
  • Type: House
  • Bedrooms: 6
  • Bathrooms: 3.5
  • Square Feet: 2,260 sqft
  • Basement: Full, Finished
  • Year Built: 1998
  • Style: Bungalow

Looking to buy a home like this one?

Kick your search up a notch.
Get help buying

Get help selling

Want marketing like this for your home? See why so many families choose to sell their home with us.

Learn more about selling >

Get help buying

Have a question about buying a home? Get help from one of our award-winning agents today.

Learn more about buying >