
7708 110 Street
McKernan, Edmonton
Sold by Aldo Esposito of Century 21 Masters
$1,100,000
beds
4baths
3sqft
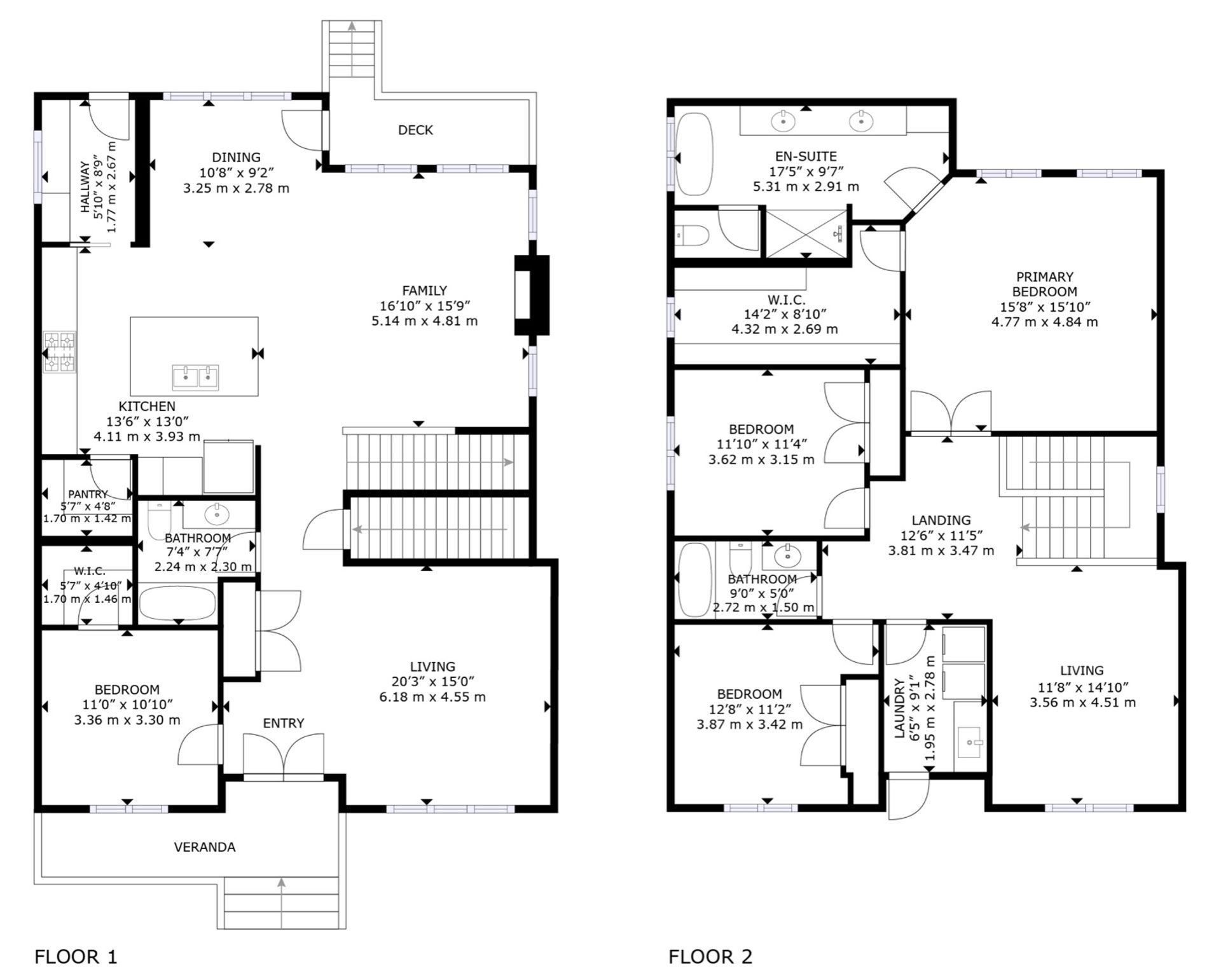
2701About this Luxury Home in McKernan, Edmonton
Don’t walk, RUN! Welcome to this professionally designed 2,700 sqft home located on the doorstep of The U of A. You'll love this 4 bedroom home on a quiet, traffic-calmed street in the heart of McKernan! Walk into the bright and open-concept living space with premium HARDWOOD floors, 10’ ceilings, GAS Fireplace, CENTRAL AIR CONDITIONING and $30,000 in designer window coverings! The Chef’s kitchen offers KITCHEN AID Appliances, loads of storage, GAS Stove and large corner PANTRY! Enjoy the convenience of your main floor OFFICE or Bedroom, second family room, FULL 4pc bathroom and SEPARATE Basement Entrance for a future SUITE. Upstairs, find a beautiful BONUS ROOM and huge Master with extra large walk-in closet and designer 5pc ENSUITE! Down the hall, find 2 more bedrooms, 3rd full bathroom, upstairs laundry room with sink and a beautiful balcony overlooking the treetops! Your garden door leads to a SUNNY WEST FACING backyard with composite deck and 24’x24’ Oversized Double
$1,100,000
beds
4baths
3sqft
2701Property Features
- MLS®: E4324140
- Type: House
- Bedrooms: 4
- Bathrooms: 3
- Square Feet: 2,701 sqft
- Basement: Unfinished with Separate Entrance
- Year Built: 2019
- Style: 2 Storey
Looking for this level of marketing for your home?
Get help sellingVirtual Tour
Get help selling
Want marketing like this for your home? See why so many families choose to sell their home with us.
Learn more about selling >Get help buying
Have a question about buying a home? Get help from one of our award-winning agents today.
Learn more about buying >